【中古戸建】伊勢崎市除ケ町

1,300万円

群馬県伊勢崎市除ケ町

東武伊勢崎線「剛志」駅徒歩48分

東武伊勢崎線「新伊勢崎」駅徒歩58分

高崎線「神保原」駅徒歩90分

価格
1,300万円
間取り
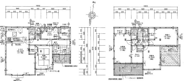
5LDK
土地面積
178.00㎡
所在地
群馬県伊勢崎市除ケ町
交通

東武伊勢崎線剛志」駅 徒歩48分

東武伊勢崎線新伊勢崎」駅 徒歩58分

高崎線神保原」駅 徒歩90分

建物面積
117.68㎡
築年月
1980年9月(築45年)

現地見学会

日時 2025年3月22日 ~  09:00 ~ 20:00
  • ※事前に必ずお問い合わせください
  • (20:00以降要相談 対応可)

    *.〇スタッフ情報*.〇
     ̄ ̄ ̄ ̄ ̄ ̄ ̄ ̄ ̄ ̄
    当店は『宅建士』の有資格者多数、在籍中です。
    不動産屋は敷居が高く、行くのに少し勇気がいる方も多いかと思いますが、
    明るく元気なスタッフばかりですので、安心してご来店いただけます!
    ぜひお気軽に足を運んで見てください♪

    *.〇見学予約方法*.〇
     ̄ ̄ ̄ ̄ ̄ ̄ ̄ ̄ ̄ ̄
    ●「今すぐみたい」→『青色』ボタンで無料電話
    ●「新着物件を知りたい」→『緑色』ボタンでLINE登録


    \ 「今からみたい」「お仕事終わりにみたい」大歓迎 /

    自前に日程の調整や鍵の手配等、必要な場合がございますので、
    内覧希望時間よりも早めのご連絡をいただくことでスムーズにご案内ができます。

    *.〇お車でお越しの方へ〇.*
     ̄ ̄ ̄ ̄ ̄ ̄ ̄ ̄ ̄ ̄ ̄ ̄ ̄
    店舗の敷地内には無料の駐車スペースをご用意しております。
    カーナビ住所→『群馬県高崎市島野町590-2 付近』

    店舗へのご来店が難しいお客様は、現地集合でも大丈夫です。
    なかには駐車が難しい物件もございますが、わたし達で誘導しサポートいたします^^

    *.〇住宅ローン相談会 実施中!〇.*
     ̄ ̄ ̄ ̄ ̄ ̄ ̄ ̄ ̄ ̄ ̄ ̄ ̄ ̄ ̄ ̄
    木ノ葉プランニングではお家探しをスムーズに進められるように、
    住宅ローン相談会を実施しております!

    ・他社で住宅ローンを断られた
    ・車のローンやカードローンがある
    ・自己資金がない
    ・勤続少ない&正社員じゃない

    資金計画、ローンの進め方等気になるお金の事も
    しっかりご説明させていただきます

    皆さまのご来店を心よりお待ちしております♪

物件の特徴

  • バストイレ別

  • TVモニタ付きインターホン

  • 独立洗面台

  • 浴室乾燥機

セールスポイント

板東小学校まで徒歩約6分
■5LDK■月々3万円台から■リフォーム済み

担当者のコメント

橋爪 隼也

しつこい営業は致しません!お客様のご希望やプランに合わせてご紹介させていただきます♪オウチ探しは「木ノ葉プランニング」までお問い合わせください!住宅ローン相談会も随時受付中です!

基本情報

販売戸数
1戸
総戸数
1戸
間取り / 詳細
5LDK
向き
建物面積(坪数)
117.68㎡(35.59坪)
土地面積(坪数)
178.00㎡(53.84坪)
建ぺい率 /
容積率
60%/200%
築年月
1980年9月(築45年)
駐車場 /
月額料金
有 0円
土地権利
所有権
土地
(敷金 / 保証金)
- / -
建物構造
木造(一部鉄骨造) / 2階建
傾斜地部分面積
-
路地状敷地
-
私道負担面積
-
セットバック
高圧線下面積
-
施工会社
-
用途地域
第一種中高層住居専用
地目 / 地勢
宅地 / 平坦
接道状況
一方(北 公道 4.0m)
国土法届出要否
不要
都市計画
市街化区域
総区画数 /
販売区画数
1区画/1区画
現況
空家
その他
法令上の制限
-
取引態様
一般媒介
引渡し
相談
取引条件の
有効期限
2026年01月25日

設備条件

設備条件
  • 陽当り良好 / 閑静な住宅地 / 現地見学会 / フローリング / バルコニー / プロパンガス / 公営水道 / 浄化槽排水 / 24時間換気システム / 駐車2台可 / ガスコンロ / コンロ2口以上 / システムキッチン / コンロ3口 / バス・トイレ別 / 追焚機能浴室 / 浴室乾燥機 / 温水洗浄便座 / 洗面台 / 洗髪洗面化粧台 / トイレ2ヶ所 / 浴室1坪以上 / 独立洗面台 / ユニットバス / 浴槽 / 浴室暖房 / 床下収納 / 収納豊富 / TVモニタ付インターホン
設備(その他)
    -

その他

物件番号
93165945
管理コード
-
建築確認番号
-
情報更新日
2026年01月11日
次回更新予定日
2026年01月25日
取扱会社
  • 木ノ葉プランニング株式会社
  • 群馬県高崎市島野町590-2 
  • TEL:027-386-8693
  • 群馬県知事 (1) 第7955号
備考

★・・・・・・・・★・・・・・・・・★

木ノ葉プランニングは・・・


・*\ オウチ住まいのスタッフ多数 /*・
実際に住んでみないとわからない?
そんな事ありません!!
実際にマイホームを購入したスタッフから
光熱費や税金、自治会費など
住み始めてからかかる
本当のお金について聞けます!(*^^*)♪


・*\ 当店は総合不動産会社です /*・
総合不動産会社として、
他社様新築物件・中古物件もご紹介可能!
窓口ひとつでトータルサポート♪
色々な不動産会社に問い合わせなくても
大丈夫です♪


店舗では住宅ローン相談会も開催中!
『ちょっと見るだけ…』
『聞いてみるだけ…』
という方ももちろん大歓迎です!

平日やお仕事終わりのご案内も承ります◎
ぜひお気軽にお問い合わせくださいませ♪

★・・・・・・・・★・・・・・・・・★

【中古戸建】伊勢崎市除ケ町の他の物件

  1. 4SLDK (119.65㎡)

    1,880万円(51.95万円/坪)

  2. 4LDK (103.92㎡)

    3,050万円(97.04万円/坪)

周辺施設

  • コメリハード&グリーン伊勢崎店	の画像

    ホームセンター

    コメリハード&グリーン伊勢崎店

    261m(4分)

  • 伊勢崎市立坂東小学校	の画像

    小学校

    伊勢崎市立坂東小学校

    450m(6分)

  • さくら幼稚園	の画像

    幼稚園

    さくら幼稚園

    850m(11分)

  • フレッセイ富塚店	の画像

    スーパー

    フレッセイ富塚店

    950m(12分)

  • クスリのアオキ伊勢崎富塚店	の画像

    ドラッグストア

    クスリのアオキ伊勢崎富塚店

    1000m(13分)

  • ミニストップ伊勢崎除ヶ町店	の画像

    コンビニエンスストア

    ミニストップ伊勢崎除ヶ町店

    1100m(14分)

  • 伊勢崎市立第四中学校の画像

    中学校

    伊勢崎市立第四中学校

    1100m(14分)

  • アイオー信用金庫茂呂支店	の画像

    銀行

    アイオー信用金庫茂呂支店

    2800m(35分)

  • とりせん茂呂店	の画像

    スーパー

    とりせん茂呂店

    3000m(38分)

支払いシミュレーション

月々の支払額
9.6
購入希望物件価格
万円
頭金
万円
金利
%
返済額(ボーナス1回分)
万円
返済期間

※ボーナスは自動で年2回分で計算されます。

近隣の物件

  1. 【中古戸建】伊勢崎市田中島町

    伊勢崎市田中島町

    5LDK (170.17㎡)

    3,500万円

  2. 【中古戸建】伊勢崎市連取本町

    伊勢崎市連取本町

    6SLDK (218.27㎡)

    5,900万円

  3. 【中古戸建】伊勢崎長沼町

    伊勢崎市長沼町

    4LDK (120.27㎡)

    2,580万円

  4. 【中古戸建】伊勢崎市馬見塚町

    伊勢崎市馬見塚町

    4LDK (141.33㎡)

    1,980万円

【中古戸建】伊勢崎市除ケ町

【中古戸建】伊勢崎市除ケ町

1,300万円

-

5LDK(117.68㎡)

お気軽にお問い合わせください

LINEからお問い合わせ 無料お問い合わせ

木ノ葉プランニング株式会社

027-386-8693

AM9:00~PM19:00

(休:年中無休)